1. Accueil
  2. Achat
  3. Achat Maison
  4. Achat Maison Gironde (33)
  5. Achat Maison MERIGNAC (33700)

Maison à vendre 4 pièces - 103,60 m2 MERIGNAC - 33

Ref : 26239

669 900 €

  • Honoraires charge vendeur
maison à vendre - 4 pièces - 103.6 m2 - MERIGNAC - 33 - AQUITAINE - Century 21 Cabinet Rollin
maison à vendre - 4 pièces - 103.6 m2 - MERIGNAC - 33 - AQUITAINE - Century 21 Cabinet Rollin
maison à vendre - 4 pièces - 103.6 m2 - MERIGNAC - 33 - AQUITAINE - Century 21 Cabinet Rollin
Envoyer un message
Message
Envoyer ce bien à un ami

Description

MERIGNAC - Capeyron

Découvrez cette maison neuve située dans le quartier de Capeyron à Mérignac, idéale pour une famille ou des personnes recherchant un espace de vie généreux.

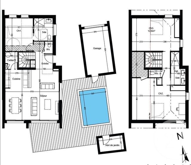
Cette maison sur deux niveaux offre une surface habitable d'environ 104 m² et se compose pour l'espace de vie, d'une cuisine aménagée ouverte sur le séjour lumineux exposée sud ouest.

Au rez-de-chaussée, vous aurez accès également à une suite parentale et un cellier.

A l'étage, un palier distribuera 2 chambres et une salle d'eau.

A l'extérieur, vous profiterez d' une terrasse parfaite pour les moments de détente en plein air et une piscine.

Un abri de jardin, un garage et une place de parking complètent ce bien.

La maison bénéficie d'un emplacement privilégié.

Le quartier de Capeyron est une zone résidentielle calme, propice à une vie de famille.
Les commerces de proximité et les transports en commun sont accessibles à quelques minutes à pied, offrant une certaine autonomie et facilitant les déplacements.
Les écoles et les espaces de loisirs à proximité répondent aux besoins des familles et des personnes qui cherchent à concilier vie personnelle et vie professionnelle.

Profitez des avantages du neuf avec des frais de notaire réduits et une garantie décennale.

Localisation

Laissez-nous vos coordonnées pour obtenir la localisation

Envoyer

Afficher sur la carte :

Demander la localisation

Vue globale

  • Surface totale : 103,6 m2
  • Surface habitable : 103,6 m2
  • Surface terrain : 264,50 m2
  • Nombre de pièces : 4
    • Entrée (5,9 m2)
    • Séjour (36,6 m2)
    • chambre / douche (17,9 m2)
    • WC (1,3 m2)
    • cellier (2,6 m2)
    • Chambre 2 (16,6 m2)
    • Chambre 3 (12,6 m2)
    • Salle d'eau (5 m2)
    • WC (1,2 m2)
    • Dégagement étage (3,9 m2)
    • Terrasse (37,7 m2)
    • abris de jardin (4,6 m2)
    • Jardin (81,6 m2)
    • garage (16,2 m2)
    • piscine (12 m2)

Équipements

Les plus

Piscine

P

Garage

Terrasse

Général

  • Garage : 1 place(s)
  • WC séparés
  • Chauffage : Clim reversible pompe à chaleur electricité
  • Eau chaude : Ballon thermodynamique
  • Façade : Enduit
  • Air conditionné, double vitrage, placards
  • Clôture

À savoir

Les performances énergétiques

Non soumis au DPE
Bien proposé par Grégory bourdil EI, agent commercial (RSAC 943364679)

Envoyer à un ami

Envoyer

Envoyer un message :

Envoyer

Créer votre alerte

Rappel de vos critères de recherche :

Erreur dans les critères envoyés

Limite d'alertes atteinte

Cette alerte existe déjà

Cette alerte est déjà enregistrée pour cette adresse email. Vous continuerez à recevoir les biens correspondant à vos critères.

Une erreur est survenue

Merci de réessayer ultérieurement.

Votre alerte a été créée

Vous recevrez les biens correspondant à vos critères.

logo vente privées

48h

d’avance sur
le marché

Prenez un temps d’avance sur le marché en profitant gratuitement des Ventes Privées CENTURY 21

Si ce n’est déjà fait, allez compléter le profil de votre compte afin de pouvoir recevoir en avant-première des biens exclusifs, réservés à nos clients pendant les 48 premières heures suivant leur commercialisation.

Nos agences proposent régulièrement des biens comme celui que vous cherchez

Ne ratez pas une opportunité, on vous alerte en priorité !

Êtes-vous actuellement propriétaire de votre bien ?
Créer une alerte
Je souhaite être alerté
Voir les biens correspondants